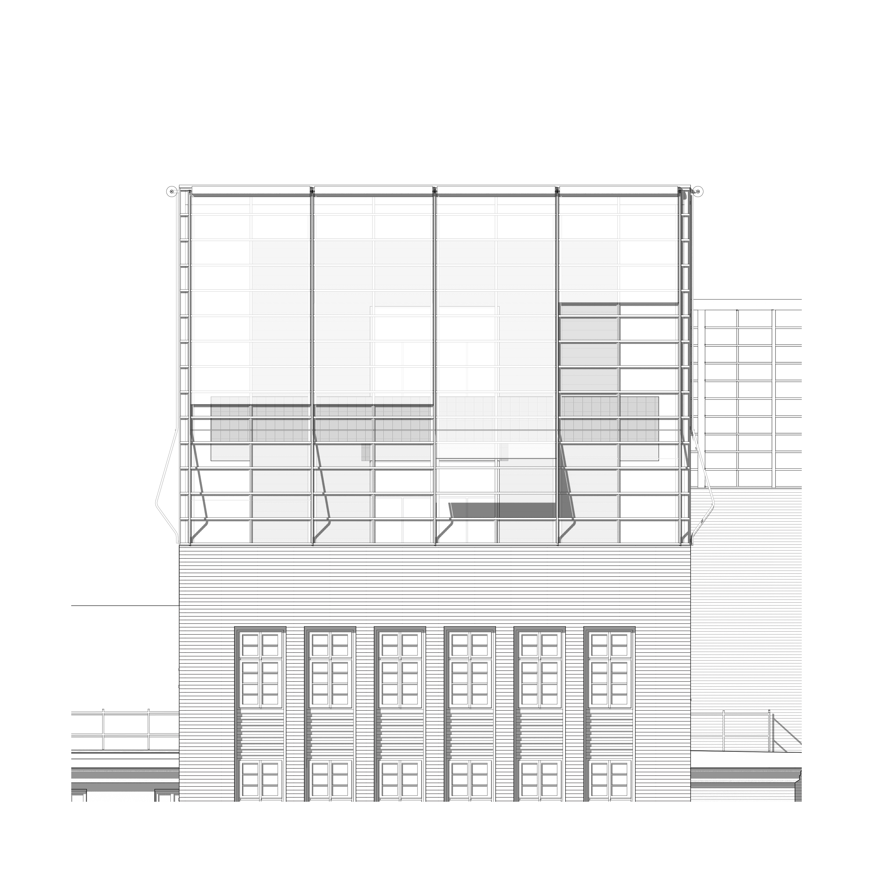
ORANGERY | 2021 | GER Braunschweig | +Leonie Hohmann







































︎  ︎  ︎